Mariehäll

Fsk Dartanjangs g.

Förskolepaviljong i gröntområde med lekpark, Förskolan dartanjangsgata i Mariehäll
  • Kund: Skolfastigheter i Stockholm AB (SISAB)
  • Bruttoarea: 757 kvm
  • Modultyp: S2000
  • Inflyttningsår: 2015
  • Placering: Mariehäll
  • Verksamhet: Förskola
  • Antal moduler: 26
  • Värmesystem: El
Förskoleavdelning i paviljong, Förskolan dartanjangsgata i Mariehäll

Platsbrist för 300 barn

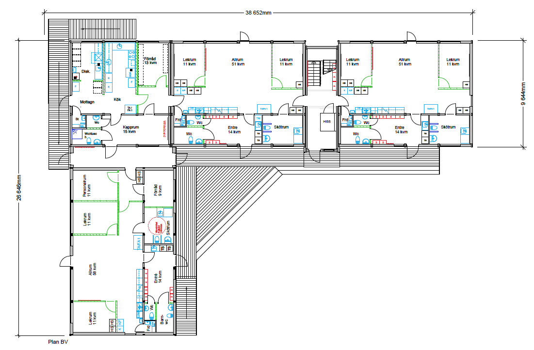
Bristen på förskoleplatser i Mariehällsområdet var stor. Cirka 300 barn som bor i området hade förskoleplats i annat område på grund av platsbrist. Totalt behövde antalet förskoleavdelningar i området öka med 27 fram till år 2022 för att tillgodose behovet av förskoleplatser. Under tiden dessa förskolor planeras och byggs hyr SiSAB, Skolfastigheter i Stockholm AB, in förskolemoduler från Expandia som ställs på tillfälliga bygglov.

Två våningar formar fem avdelningar

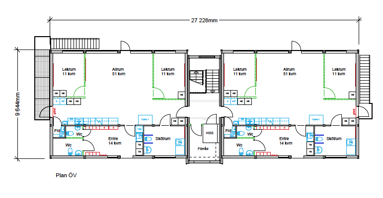
På Dartanjangs gata ställdes 26 förskolemoduler i vinkel varav halva paviljongen är i två våningar. Förskolan består av fem avdelningar med eget tillagningskök och plats för 90 barn.

Förskolepaviljong i gröntområde med lekpark, Förskolan dartanjangsgata i Mariehäll
jacob wallstedt, expandia

Ingen fråga är för liten

Vad kostar en sån här lösning, kan modulerna stå på all typ av mark och vad ingår i hyran? Vi vet att det kan dyka upp en hel del frågor när man börjar fundera på modulkontor. Därför finns våra experter tillgängliga för att svara på allt du funderar över.

Kundcase

Se liknande kundcase

Sedan vi startade för över 30 år sedan har vi levererat tusentals tillfälliga lokaler till skolor, företag och boenden över hela Sverige. Här kan du se några av de lösningar vi skapat åt våra kunder.