Frederikssund

Brenntag

Vita kontorsmoduler i två plan placerade i grön utemiljö med träd och gräsytor. Flexibla kontorsmoduler från Expandia.
  • Kund: Brenntag Nordic
  • Bruttoarea: 1152 kvm
  • Modultyp: K2000
  • Inflyttningsår: 2016
  • Placering: Frederikssund
  • Verksamhet: Kontor
  • Antal moduler: 40
  • Värmesystem: El
Vita kontorsmoduler i två plan placerade i grön utemiljö med träd och gräsytor. Flexibla kontorsmoduler från Expandia.

Modul löser brist på personalutrymmen

På grund av en stor ökning av personalgruppen hade Brenntag ett stort behov av mer kontor, mötesrum och matsalar. Kontorsmoduler från Expandia blev lösningen som uppfyllde företagets alla önskningar.

Vita kontorsmoduler i två plan placerade i grön utemiljö med träd och gräsytor. Flexibla kontorsmoduler från Expandia.

Två sammanlänkade paviljonger

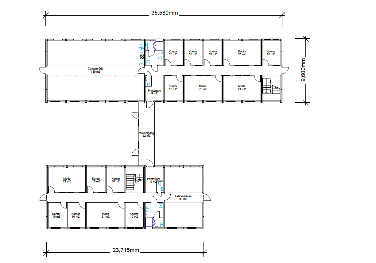
Kontorsbyggnaden vid Brenntag består av 40 stycken K2000 moduler motsvarande 1200 m2. Kontoret byggdes som två paviljonger på två våningar vardera med en sammanlänkning mellan dem. Byggnaden inrymmer kontor, laboratorier, en gemensam matsal och en driftsavdelning.

Vita kontorsmoduler i två plan placerade i grön utemiljö med träd och gräsytor. Flexibla kontorsmoduler från Expandia.
Stefan Gertsen, expandia

Ingen fråga är för liten

Vad kostar en sån här lösning, kan modulerna stå på all typ av mark och vad ingår i hyran? Vi vet att det kan dyka upp en hel del frågor när man börjar fundera på modulkontor. Därför finns våra experter tillgängliga för att svara på allt du funderar över.

Kundcase

Se liknande kundcase

Sedan vi startade för över 30 år sedan har vi levererat tusentals tillfälliga lokaler till skolor, företag och boenden över hela Sverige. Här kan du se några av de lösningar vi skapat åt våra kunder.