Norrtälje

Nordrona LSS-boende

Uteplats vid Nordrona LSS-boende i Norrtälje med trädäck, bord och stolar, blomkrukor samt boendemoduler från Expandia i bakgrunden och tillgänglig ramp längs fasaden.
  • Kund: Norrtälje kommun
  • Bruttoarea: 1005 kvm
  • Modultyp: B2000/K2000
  • Inflyttningsår: 2019
  • Placering: Norrtälje
  • Verksamhet: LSS-boende
  • Antal moduler: 35
  • Värmesystem: El
Nordrona LSS-boende i Norrtälje med ljusa boendemoduler från Expandia placerade runt en grön innergård, med ramper, grusgångar och stora stenar i förgrunden.

Modullösning löser akut behov av boenden

Det befintliga LSS-boendet i Norrtälje var i akut behov av renovering och det behövdes en snabb lösning för att komma tillrätta med problemet. Expandias moduler handlades upp och utgör nu en tillfällig lösning i väntan på att något nytt eventuellt ska byggas.

 

Nordrona LSS-boende i Norrtälje med vita boendemoduler från Expandia placerade i grön naturmiljö med ängsmark och blå himmel.

Boende med 9 lägenheter

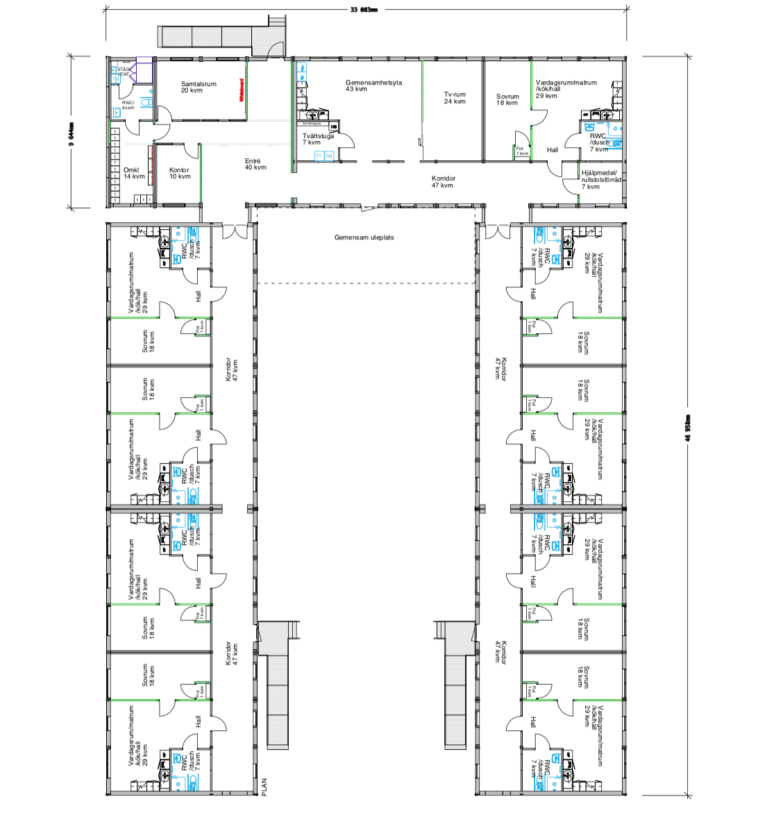
Nordrona LSS-boende är ett tillfälligt boende med 9 lägenheter och tillhörande kök för 15 personer, TV-rum samt personalutrymmen. Modulhuset är utformat som ett U vilket ger en lugn innergård med altan och markiser och där varje lägenhet har eget vardagsrum/matrum med vinkelkök.
Lägenheterna har även separata sovrum med klädförvaring och förråd samt RWC/dusch.

Eftersom LSS-boende tillhör verksamhetsklass 5B, är självklart sprinklersystem och brand-
inbrotts- och utrymningslarm installerat.

Entré till boendemodul från Expandia vid Nordrona LSS-boende i Norrtälje, med tillgänglig ramp, räcke, uteplats med möbler och blomkrukor.
jacob wallstedt, expandia

Ingen fråga är för liten

Vad kostar en sån här lösning, kan modulerna stå på all typ av mark och vad ingår i hyran? Vi vet att det kan dyka upp en hel del frågor när man börjar fundera på modulkontor. Därför finns våra experter tillgängliga för att svara på allt du funderar över.

Kundcase

Se liknande kundcase

Sedan vi startade för över 30 år sedan har vi levererat tusentals tillfälliga lokaler till skolor, företag och boenden över hela Sverige. Här kan du se några av de lösningar vi skapat åt våra kunder.