Limhamn

Polypeptide Limhamn

Ljus och modern paus- och mötesyta i kontorsmoduler hos Polypeptide med sittgrupper, höga bord, gröna stolar, växter och mjuk belysning där medarbetare samtalar i en trivsam arbetsmiljö – kontorsmoduler från Expandia.
  • Kund: PolyPeptide
  • Bruttoarea: 950 kvm
  • Modultyp: K2000
  • Avtalstid: 36 månader
  • Placering: Limhamn
  • Verksamhet: Peptidtillverkning för läkemedel/bioteknik
  • Antal moduler: 33

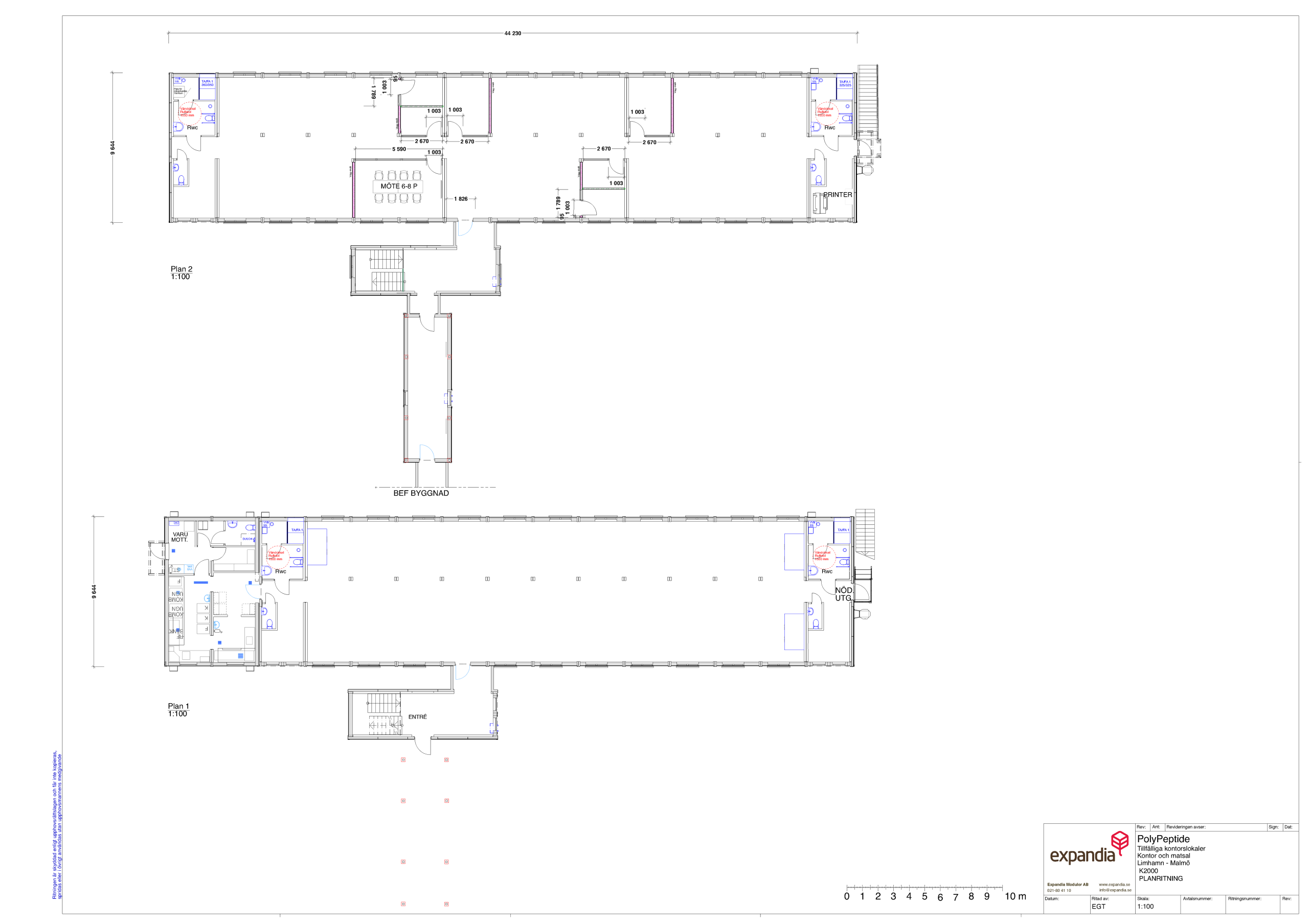
Expandia monterade 33 moduler som idag formar en tvåvånings kontorsbyggnad med matsal och kök på bottenvåningen samt kontorslandskap och konferensrum på plan två, allt med fokus på ljus, ljudmiljö och trivsam inredning.

Eva-Lena Grankvist, Säljare på Expandia.
Öppen paus- och mötesyta i kontorsmoduler hos Polypeptide med träbord, gröna stolar, rikligt med växter och pendelbelysning, där medarbetare rör sig och samtalar i en ljus och modern arbetsmiljö. Kontorsmoduler från Expandia.

En snabb och trygg lösning

Polypeptide i Limhamn var trångbodda och behövde en snabb och trygg lösning. Expandia monterade 33 moduler som idag formar en trevlig kontorsuppställning.

Det är en tvåvåningsbyggnad med en sluss till deras befintliga byggnad från plan två. I bottenvåningen finns det matsal och kök med ca 150 sittplatser, med möjlighet att värma mat eller köpa från restaurangen som drivs av en cateringfirma. På plan två är det öppet kontorslandskap med 30 arbetsplatser och 7 konferensrum, med bra ljusinsläpp, behaglig ljudmiljö och bra luft.

 

Kontorsmoduler hos Polypeptide placerade i grön utemiljö med gräsmattor, träd, gångvägar och uteplatser med picknickbord, samt tvåplansmoduler med fönsterrader – kontorsmoduler från Expandia.

En personlig prägel

Polypeptide har även investerat i en inredningsarkitekt som har fokuserat på att inreda trivsamt med målade fondväggar, heltäckningsmatta, bytt armaturer, fina möbler, m.m.

Ljus paus- och mötesyta i kontorsmoduler hos Polypeptide med träbord, gröna stolar, pendelbelysning och växter, där medarbetare vistas och samtalar i en modern och trivsam arbetsmiljö – kontorsmoduler från Expandia.
Stefan Gertsen, expandia

Ingen fråga är för liten

Vad kostar en sån här lösning, kan modulerna stå på all typ av mark och vad ingår i hyran? Vi vet att det kan dyka upp en hel del frågor när man börjar fundera på modulkontor. Därför finns våra experter tillgängliga för att svara på allt du funderar över.

Kundcase

Se liknande kundcase

Sedan vi startade för över 30 år sedan har vi levererat tusentals tillfälliga lokaler till skolor, företag och boenden över hela Sverige. Här kan du se några av de lösningar vi skapat åt våra kunder.