Långaryd
Solgläntans fsk
En flexibel och bra lösning
Två avdelningar i ett plan
Flexibla kontorslokaler för projektkontor, växande verksamheter och tillfälliga etableringar.
Inflyttningsklara skolmoduler med bra lärmiljöer – snabbt på plats.
Trygga förskolemoduler med moderna och inspirerande miljöer för lek och lärande.
Trivsamma boenden i form av korridorrum eller lägenheter. Snabbt etablerade när behov uppstår.
Snabba, anpassningsbara vårdmoduler för allt från vårdcentraler till omsorgsboenden.
Behöver du något utöver det vanliga? Vi bygger specialmoduler för allt från hunddagis till fängelser.
Här hittar du moduler som säljs utanför vårt standardsortiment – till ett förmånligt pris.
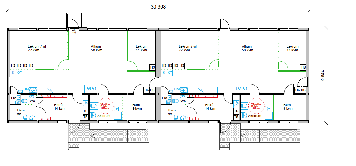
Solgläntans förskola är en helt fristående paviljong som är uppbyggd av 10 st. S2000-moduler från Expandia. 2016 hyrdes en förskoleavdelning in för att ett år senare kompletteras med ytterligare en. Ett bra sätt att etappvis utöka lokalerna för att följa efterfrågan och lätt att säga upp om behoven ser annorlunda ut efter några år.
Solgläntans förskola är två avdelningar i ett plan med plats för 34 barn. Komplett utrustad med kök, kapprumsinredning, skötrum och en härligt stor utegård.
Vad kostar en sån här lösning, kan modulerna stå på all typ av mark och vad ingår i hyran? Vi vet att det kan dyka upp en hel del frågor när man börjar fundera på modulkontor. Därför finns våra experter tillgängliga för att svara på allt du funderar över.
Kundcase
Sedan vi startade för över 30 år sedan har vi levererat tusentals tillfälliga lokaler till skolor, företag och boenden över hela Sverige. Här kan du se några av de lösningar vi skapat åt våra kunder.