Göteborg

Östra Sjukhuset Göteborg

Moduler från Expandia vid Östra sjukhuset i Göteborg, använda som kirurgmottagning och förlossningsavdelning, placerade intill sjukhusets ordinarie byggnad.
  • Kund: Västfastigheter
  • Bruttoarea: 2400 kvm
  • Modultyp: K2000 (specialbyggda)
  • Inflyttningsår: Kirurgmottagningen 2014 med tillbyggnad 2017 Förlossningen 2018
  • Placering: Göteborg
  • Verksamhet: Kirurgmottagning och förlossningsavdelning
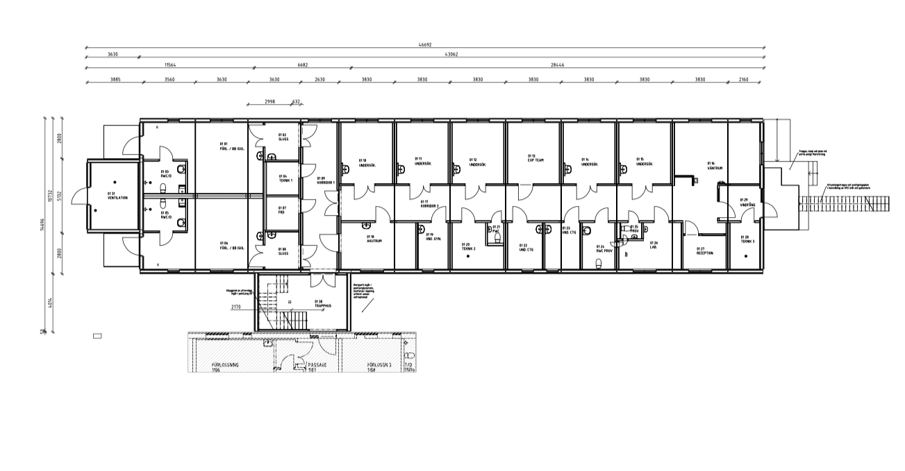
  • Antal moduler: 24
Moduler från Expandia vid Östra sjukhuset i Göteborg, använda som kirurgmottagning och förlossningsavdelning, placerade intill sjukhusets ordinarie byggnad.

Kirurgmottagning och förlossningsavdelnig från Expandia

Östra sjukhuset i Göteborg hyr för närvarande två tillfälliga byggnader från Expandia.

Kirurgmottagningen har haft full verksamhet i Expandias moduler sedan 2014 med utökning våren 2017, och hösten 2018 utökar förlossningsavdelningen sina lokaler med en ny paviljong.

Entré till förlossningsavdelningen vid Östra sjukhuset i Göteborg, där moduler från Expandia används för förlossning, integrerade med sjukhusområdet.

Uppfyller höga krav för sterila miljöer

Sjukhusmiljöer har väldigt höga och krav, både vad gäller att klara av en steril miljö, hårda tillgänglighetskrav och även larm och kallelsesystem som i detta fall integreras med befintliga system.

Till Östra sjukhuset byggdes specialmoduler för att tillgodose kraven men de är i grunden baserade på Expandias K2000-moduler. De två byggnaderna består totalt av 26 st. moduler i två våningar och har fasadskivor i grått kompositmaterial för att passa in med övriga byggnader i området.

Undersökningsrum i modul från Expandia vid Östra sjukhuset i Göteborg, utrustat med förvaring, arbetsbänk, kylskåp, handfat och medicinsk väggutrustning för vårdverksamhet.
anna karlsson, expandia

Ingen fråga är för liten

Vad kostar en sån här lösning, kan modulerna stå på all typ av mark och vad ingår i hyran? Vi vet att det kan dyka upp en hel del frågor när man börjar fundera på modulkontor. Därför finns våra experter tillgängliga för att svara på allt du funderar över.

Kundcase

Se liknande kundcase

Sedan vi startade för över 30 år sedan har vi levererat tusentals tillfälliga lokaler till skolor, företag och boenden över hela Sverige. Här kan du se några av de lösningar vi skapat åt våra kunder.