Hammarby sjöstad

Ekens skola

  • Kund: Skolfastigheter i Stockholm AB
  • Bruttoarea: 3394 kvm
  • Modultyp: S3000
  • Inflyttningsår: 2018
  • Placering: Hammarby sjöstad
  • Verksamhet: Skola
  • Antal moduler: 117

Vi har en fantastiskt fin och bra skola – det tycker alla.

konstaterar skolans rektor Christina Lindgren.
skolans rektor Christina Lindgren.
Ekens skola i Hammarby Sjöstad med en skolmodullösning från Expandia, där elever rör sig över skolgården framför grå moduler i två plan med entréer och utvändiga trappor.

Monterades på tre veckor

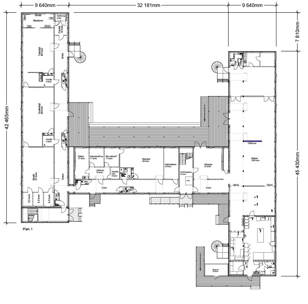
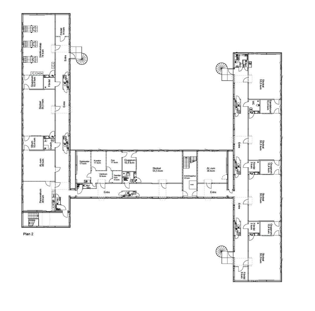
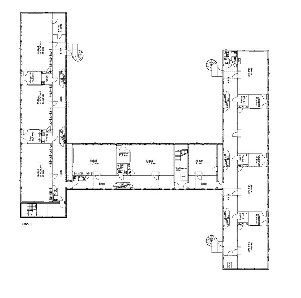
På Ekens skola i Hammarby Sjöstad går idag 450 elever. Den tre våningar höga byggnaden inrymmer 20 klassrum, fullt utrustade NO-, slöjd-, och hemkunskapssalar, bildsalar och bibliotek. Dessutom inhyser den administrativa ytor, ett stort tillagningskök och en matsal på 270 kvadratmeter.

Det här är ett lysande exempel på hur en skola snabbt kan byggas upp utan att kännas det minsta tillfällig. De 117 stycken nytillverkade S3000-modulerna från Expandia monterades under tre veckor, färdigställdes sedan invändigt på fyra månader.

 

Elever samtalar på skolgården utanför Expandias modullösning på Ekens skola i Hammarby Sjöstad, med modulbyggnader i bakgrunden.

Inspekterar, underhåller och åtgärdar

 Expandia inspekterar och underhåller regelbundet skolans lokaler samt åtgärdar eventuella skador som uppstår. 

– Vi har alltid haft ett jättebra samarbete med Expandia. Det är alltid samma personer som kommer och de är väldigt flexibla och lösningsorienterade, konstaterar Christina och fortsätter: 

 – I en verksamhet med 450 ungdomar uppstår ett visst slitage. För oss är det viktigt att åtgärda skador så snabbt det bara går eftersom alla är rädda om en miljö som är fin. På så vis har vi till exempel inget klotter. 

Elever har musiklektion i skolans kreativa miljö. Undervisningen sker i en modullösning från Expandia vid Ekens skola i Hammarby Sjöstad.
Elever genomför en biologilektion och presenterar en anatomimodell i ett klassrum i Expandias modullösning på Ekens skola i Hammarby Sjöstad.

Positivt rykte

Ekens skola har fått ett positivt rykte bland elever, skolpersonal och bland många av dem som söker en ny skola. Trycket är hårt. Lägg därtill att Ekens skola blivit uppmärksammat i media för att ha uppnått positiva resultat med hjälp av nya undervisningsmetoder, så kallade ämnesveckor. Skolan har också vunnit Stora läspriset, som delades ut på Bokmässan hösten 2023.

 

Elever vistas i skolbiblioteket i Expandias modullösning på Ekens skola i Hammarby Sjöstad, där de läser och väljer böcker bland bokhyllor i en lugn studiemiljö.
jacob wallstedt, expandia

Ingen fråga är för liten

Vad kostar en sån här lösning, kan modulerna stå på all typ av mark och vad ingår i hyran? Vi vet att det kan dyka upp en hel del frågor när man börjar fundera på att hyra modulskola. Därför finns våra experter tillgängliga för att svara på allt du funderar över.

eller

Kundcase

Se liknande kundcase

Sedan vi startade för över 30 år sedan har vi levererat tusentals tillfälliga lokaler till skolor, företag och boenden över hela Sverige. Här kan du se några av de lösningar vi skapat åt våra kunder.