Tullinge

Falkbergsskolan

Exteriör vy av Falkbergsskolans modullösning i Tullinge med flera sammankopplade våningsplan, innergård och spiraltrappa – en modern och flexibel skolmodullösning från Expandia.
  • Kund: Botkyrka kommun
  • Bruttoarea: 3916 kvm
  • Modultyp: S3000
  • Inflyttningsår: 2019
  • Placering: Tullinge
  • Verksamhet: Skola
  • Antal moduler: 135

De har överträffat mina förväntningar. Vi var rädda att det skulle ta lång tid, men det gick otroligt snabbt och lokalerna är väldigt fina.

Anna-Lena Bergman, rektor på Falkbergsskolan.
Falkbergsskolan i Tullinge med tre våningar av sammanlänkade grå moduler, utvändigt trapphus och stora fönster, placerad på en öppen skolgård – en flexibel modullösning från Expandia.

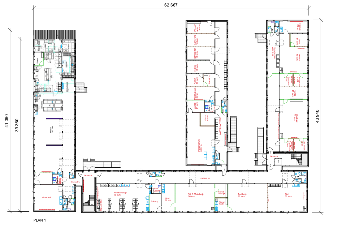
Sveriges snabbaste skola?

I mars 2017 tog utbildningsnämnden beslutet att riva den 60 år gamla Falkbergsskolan och bygga en ny. Klagomål från både personal och elever angående huvudvärk på grund av dålig ventilation, dåligt isolerade klassrum och vattenläckor har gjort behovet av förnyelse uppenbart. Medan den nya Falkbergsskolan i Botkyrka byggs kommer de 400 eleverna att undervisas i lokaler från Expandia Moduler. Den tillfälliga skolan monterades på bara några dagar.

 

Invändig miljö i skolans modullösning med klassrum möblerat med bord och stolar, whiteboard, projektor och stora fönster som ger gott ljusinsläpp. Moduler från Expandia.

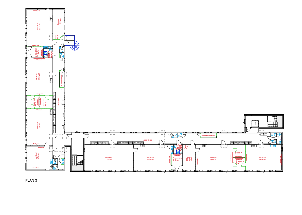
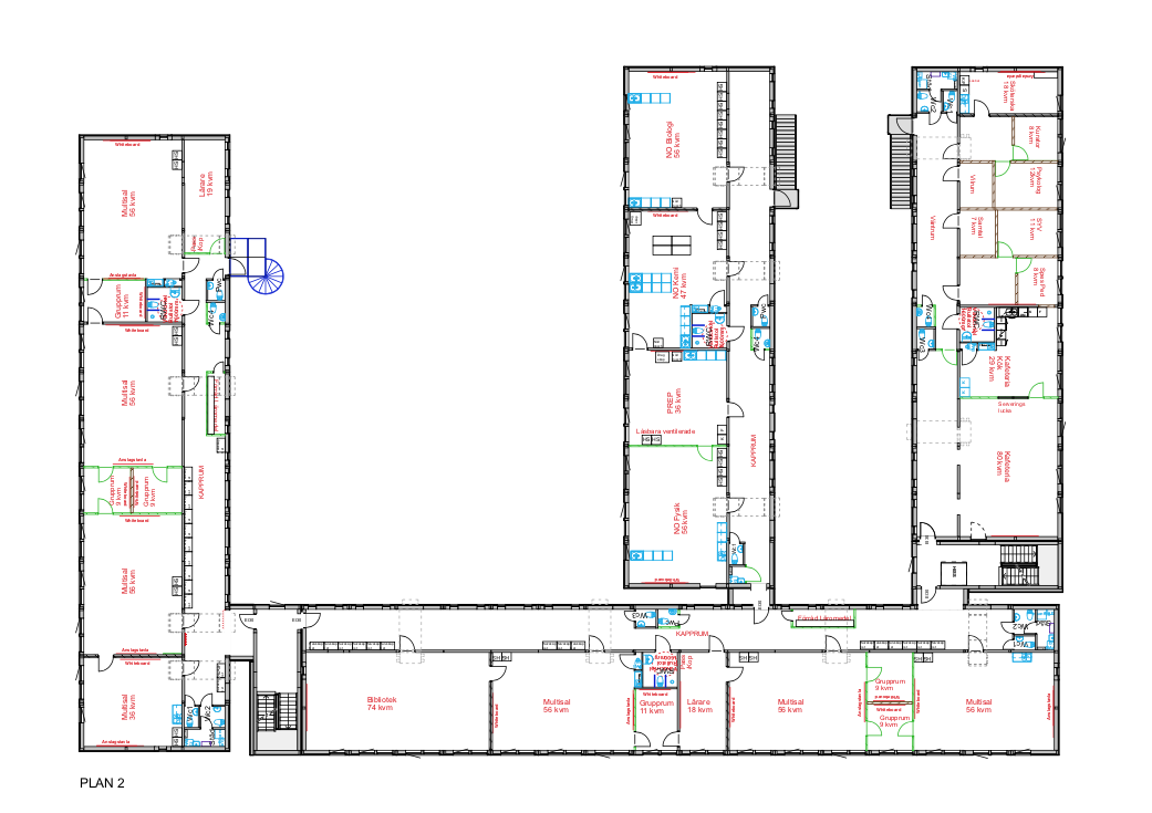
Smidig process

Falkbergsskolans ledning har deltagit i planeringen av paviljongerna som ska husera 400 elever i årskurs sex till nio under två år. Den tillfälliga skolan består av 135 stycken S3000-moduler från Expandia Moduler som har monterats i tre våningar. Skolledningen var orolig för att projektet skulle störa undervisningen och påverka trafiken i området, men de har blivit positivt överraskade.

– Det gick otroligt smidigt. De monterades runt jul och det tog några dagar. Plötsligt stod den nya skolan bara där. Vi har ju varit med under hela processen och bestämt hur modulerna skulle stå och hur de skulle inredas. När jag nu är här så känns det som att vi har planerat en väldigt bra skola. Vi kommer att ha samma utrustning som på den tidigare skolan, så allting blir egentligen bara till det bättre, avslutar Anna-Lena Bergman.

Se filmen om när Falkbergsskolan monterades här.

Tillfälligt storkök i Falkbergsskolans modullösning från Expandia, med rostfria arbetsbänkar, ugn, ventilationssystem i taket samt serverings- och diskrum i anslutning.
jacob wallstedt, expandia

Ingen fråga är för liten

Vad kostar en sån här lösning, kan modulerna stå på all typ av mark och vad ingår i hyran? Vi vet att det kan dyka upp en hel del frågor när man börjar fundera på modulkontor. Därför finns våra experter tillgängliga för att svara på allt du funderar över.

Kundcase

Se liknande kundcase

Sedan vi startade för över 30 år sedan har vi levererat tusentals tillfälliga lokaler till skolor, företag och boenden över hela Sverige. Här kan du se några av de lösningar vi skapat åt våra kunder.