Gässlösa, Borås

Kronängsskolan

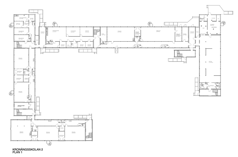
Evakueringsskola vid Kronängsskolan i Borås med två våningar klassrum i en modullösning från Expandia, placerad längs en asfalterad väg med grönområden runtom.
  • Kund: Borås stad
  • Bruttoarea: 6 460 kvm
  • Modultyp: S2000/K2000
  • Inflyttningsår: 2018/2019
  • Placering: Gässlösa, Borås
  • Verksamhet: Skola och idrottshall
  • Antal moduler: 239
  • Värmesystem: Vattenburet

Under rådande omständigheter är jag mycket nöjd med att vi har hittat en bra och långsiktig lösning för att kunna uppgradera våra skolor under ordnade former och med god kvalitet.

Pär Arvidsson Fäldt, Grundskoleförvaltningens chef.
Skolgård vid Kronängsskolan i Borås med lekytor, sandlåda och gungställning, intill en tillfällig idrottshall och en modullösning från Expandia för skolans verksamhet.

En logistisk utmaning

Många av Borås grundskolor behöver byggas om och rustas upp för att kunna ta emot fler elever. Det är ett viktigt och omfattande arbete som kräver en logistik utöver det vanliga. För att lösa logistiken har Borås stad byggt upp Kronängsskolan, en stor ersättningsskola som Borås grundskoleelever bussas till medan de permanenta skolorna byggs om och rustas upp.

 

Slöjdsal i skolans modullösning från Expandia, utrustad med träbearbetningsmaskiner, punktutsug, arbetsytor och god belysning anpassad för undervisning i praktiska ämnen.

Två stora idrottstält

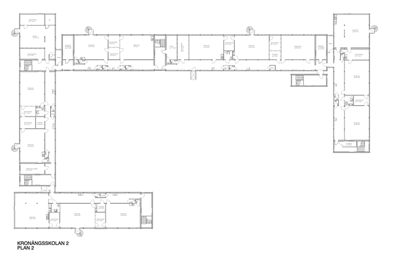
Kronängsskolan på Gässlösa är i två plan och har byggts upp i två etapper som två separata byggnader med komplett utrustade storkök, matsalar, slöjdsalar för textil, trä och metall, bibliotek och personalrum.

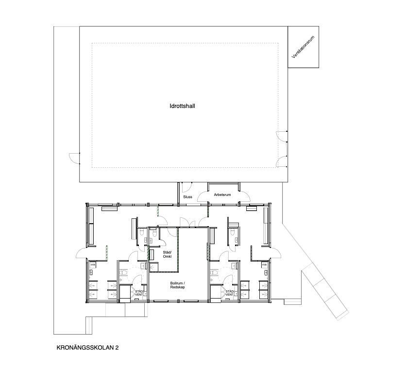
Utöver detta har även två stora idrottstält hyrts in. Omklädningsrum med duschar har man också löst med hjälp av Expandias moduler.

Invändig idrottshall i skolmodullösning från Expandia, med blå sportgolv, målbur, basketkorgar, högt i tak och jämn belysning.
anna karlsson, expandia

Ingen fråga är för liten

Vad kostar en sån här lösning, kan modulerna stå på all typ av mark och vad ingår i hyran? Vi vet att det kan dyka upp en hel del frågor när man börjar fundera på modulkontor. Därför finns våra experter tillgängliga för att svara på allt du funderar över.

Kundcase

Se liknande kundcase

Sedan vi startade för över 30 år sedan har vi levererat tusentals tillfälliga lokaler till skolor, företag och boenden över hela Sverige. Här kan du se några av de lösningar vi skapat åt våra kunder.