Köping

Nyckelbergsskolan

  • Kund: Köping kommun
  • Bruttoarea: 5155 kvm
  • Modultyp: K2000 S2000
  • Avtalstid: 36 månader
  • Inflyttningsår: 2024
  • Placering: Köping
  • Verksamhet: Skola
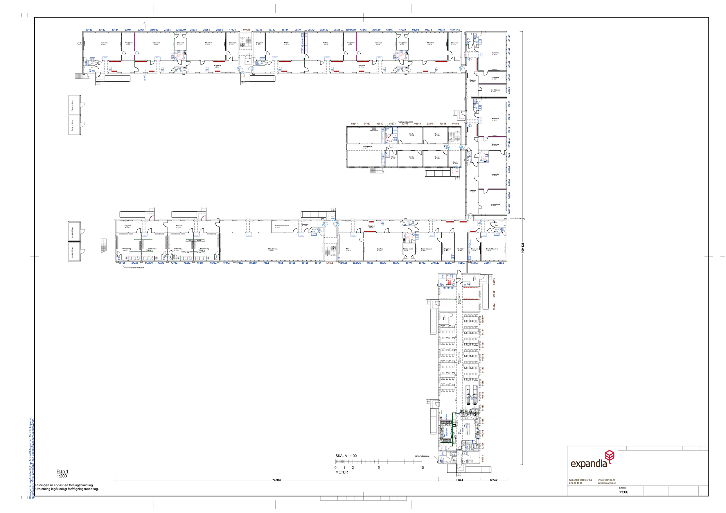
  • Antal moduler: 179

På bara 12 veckor monterades 179 moduler som idag rymmer 410 elever i årskurs F–6, tillsammans med personalens kontorsutrymmen. En flexibel lösning där skola och arbetsplats förenas med smart invändig kommunikation mellan modulerna.

Michael Jangholt, säljare på Expandia
Elever vistas i ljus och rymlig korridor vid Nyckelbergsskolan i Köping, med moderna skolmoduler

Flexibel lösning

Nyckelbergsskolan på Barnhemsgatan i Köping ska rivas för att ge plats åt en ny skolbyggnad. Under byggperioden flyttar verksamheten till tillfälliga skolmoduler som placeras på befintlig yta vid Scheeleskolan. Modulerna är anpassade för att möta behoven hos grundskoleverksamhet F–6 och erbjuder en både praktisk och flexibel lösning under övergångsperioden.

 

Elever leker på skolgård vid Nyckelbergsskolan i Köping med skolmoduler från Expandia i bakgrunden, trygg och aktiv utemiljö för skolverksamhet.

179 skolmoduler

Med en smart lokalförteckning rymmer de 179 modulerna bland annat 24 klassrum, 24 grupprum, musiksal, bibliotek, idrottsrum och matsal – samt kontor, arbetsrum och mötesrum för personal. Tack vare den invändiga kommunikationen mellan modulerna skapas en funktionell och effektiv arbets- och lärmiljö som möter behoven för både utbildning och fritidsaktiviteter.

Elev vilar och leker i lugn inomhusmiljö vid Nyckelbergsskolan i Köping, en trivsam yta i skolmoduler från Expandia.
jacob wallstedt, expandia

Ingen fråga är för liten

Vad kostar en sådan här lösning, kan modulerna stå på all typ av mark och vad ingår i hyran? Vi vet att det kan dyka upp en hel del frågor när man börjar fundera på moduler. Därför finns våra experter tillgängliga för att svara på allt du funderar över.

Kundcase

Se liknande kundcase

Sedan vi startade för över 30 år sedan har vi levererat tusentals tillfälliga lokaler till skolor, företag och boenden över hela Sverige. Här kan du se några av de lösningar vi skapat åt våra kunder.