Gullmarsplan, Stockholm

Årstaskolan

Skolmoduler från Expandia vid Årstaskolan i Gullmarsplan, flervåningslösning med ljusa klassrum i grön stadsmiljö.
  • Kund: Skolfastigheter i Stockholm AB
  • Bruttoarea: 2348 kvm
  • Modultyp: S3000
  • Inflyttningsår: 2017/2019
  • Placering: Gullmarsplan, Stockholm
  • Verksamhet: Skola
  • Antal moduler: 81
Skolgård vid Årstaskolan i Gullmarsplan med skolmoduler från Expandia, utformad för trygg lek och moderna lärmiljöer.

Första S3000 skolpaviljong

Expandias första S3000 skolpaviljong i tre våningar byggdes sommaren 2017 på Gullmarsplan i Stockholm. Totalt 81 stycken S3000-moduler, monterades för att täcka Årstaskolans stora behov av extra elevplatser.

 

Skolmoduler från Expandia vid Årstaskolan i Gullmarsplan, moderna och flexibla modullösningar för skolverksamhet i stadsmiljö.

Flexibel lösning

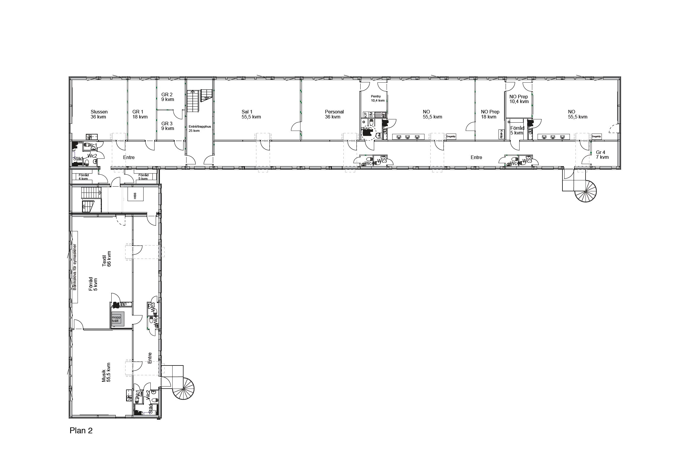
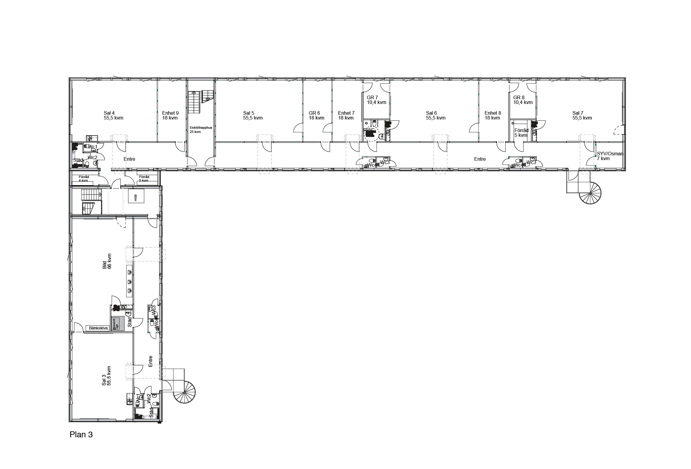
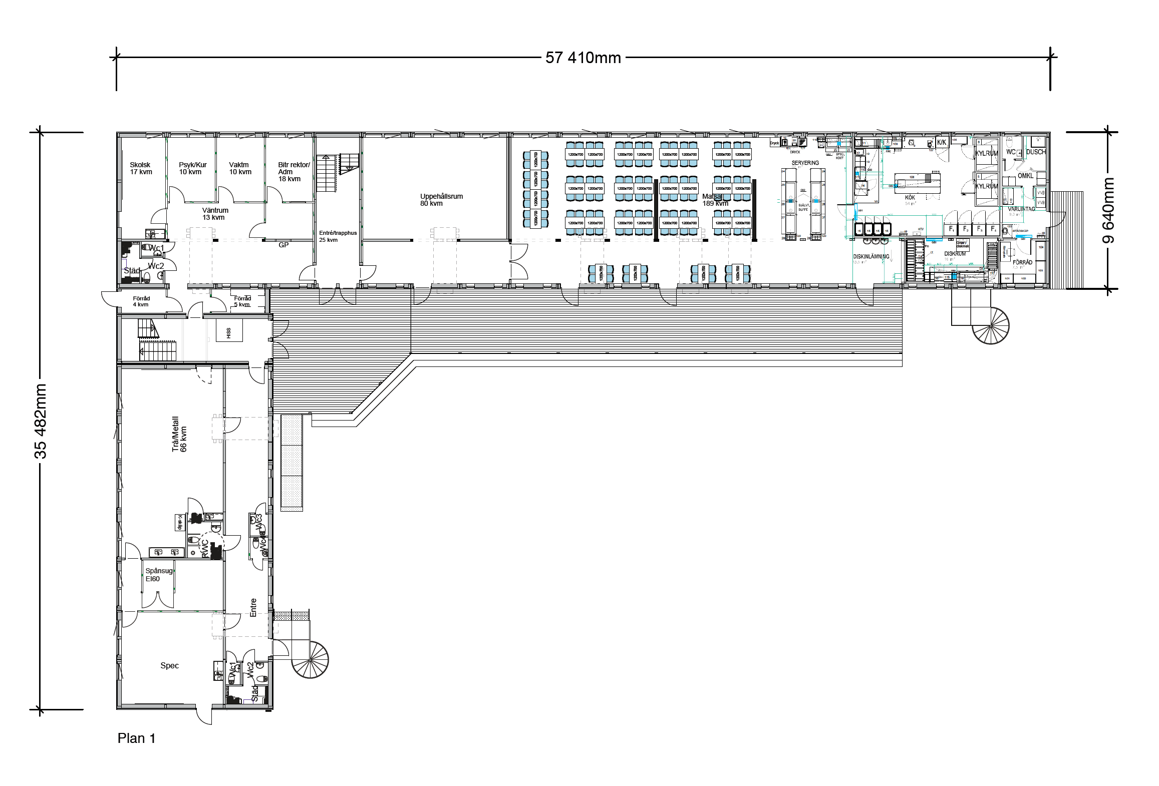
Denna skola är utrustad med ett fullskaligt tillagningskök och matsal för 140 elever per sittning. Totalt 14 klassrum inklusive två NO-salar, musiksal samt textil- och träslöjdsal fullt utrustade.

Sommaren 2019 utökades skolan med ytterligare en 3-våningspaviljong som genom en sluss binds ihop med den befintliga byggnaden.

Skolmoduler från Expandia vid Årstaskolan i Gullmarsplan, flexibel skollösning med flera våningsplan runt öppen skolgård i stadsmiljö.
jacob wallstedt, expandia

Ingen fråga är för liten

Vad kostar en sån här lösning, kan modulerna stå på all typ av mark och vad ingår i hyran? Vi vet att det kan dyka upp en hel del frågor när man börjar fundera på modulkontor. Därför finns våra experter tillgängliga för att svara på allt du funderar över.

Kundcase

Se liknande kundcase

Sedan vi startade för över 30 år sedan har vi levererat tusentals tillfälliga lokaler till skolor, företag och boenden över hela Sverige. Här kan du se några av de lösningar vi skapat åt våra kunder.